开源Cad应用程序-QCAD
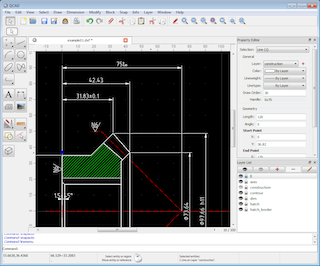
QCad 是一个专业的 CAD 系统。QCad 使用户能够创建技术图纸,如计划、建筑、室内装饰、机械部件或架构和图表。它采用 DXF 文件作为其标准的文件格式。虽然其它 CAD 软件包往往是使用复杂,但 QCad 试图有所不同。采用C/C++开发并在GPLv3协议下授权。
QCAD is a free application for computer aided drafting in two dimensions (2d). With QCAD you can create technical drawings such as plans for buildings, interiors, mechanical parts or schematics and diagrams. QCAD works on Windows, Mac OS X and Linux.

QCAD was designed with modularity, extensibility and portability in mind. But what people notice most often about QCAD is its intuitive user interface. QCAD is an easy to use but powerful 2D CAD system for everyone. You don't need any CAD experience to get started with QCAD immediately.
Features
Layers
Blocks (grouping)
35 CAD fonts included
Support for TrueType fonts
Various Metrical and Imperial units
DXF and DWG input and output
Printing to scale
Printing on multiple pages
Over 40 construction tools
Over 20 modification tools
Construction and modification of points, lines, arcs, circles, ellipses, splines, polylines, texts, dimensions, hatches, fills, raster images
Various powerful entity selection tools
Object snaps
Measuring tools
Part library with over 4800 CAD parts
Very complete and extremely powerful ECMAScript scripting interface
最新版本:3.1
修复了包含非ASCII 字符时的渲染、保存和加载问题。
项目主页:http://www.ribbonsoft.com/en/qcad